旅客留言

采购信息

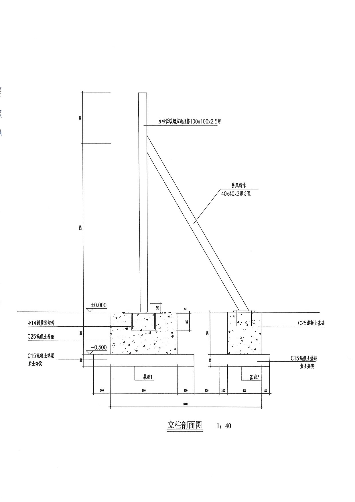
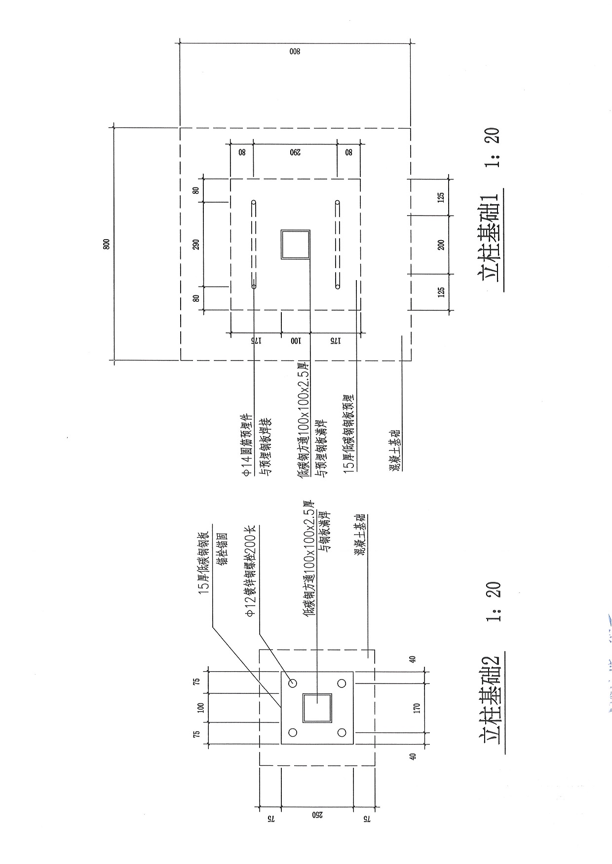
珠机城轨二期机场入口段临时道路围挡工程公开询价公告