旅客留言

采购信息

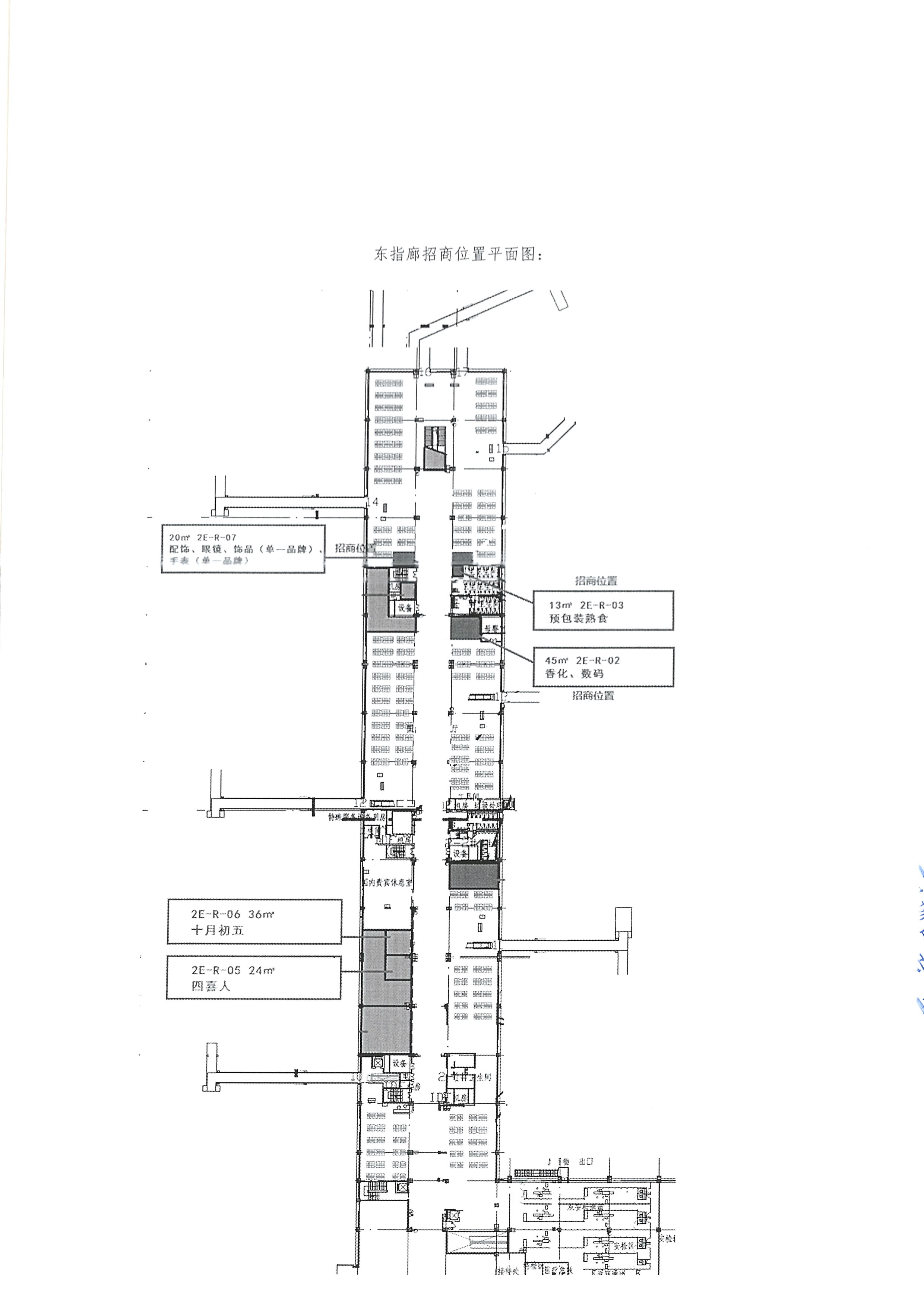
珠海机场整体零售经营招商项目(预包装食品、熟食)比选公告