旅客留言

采购信息

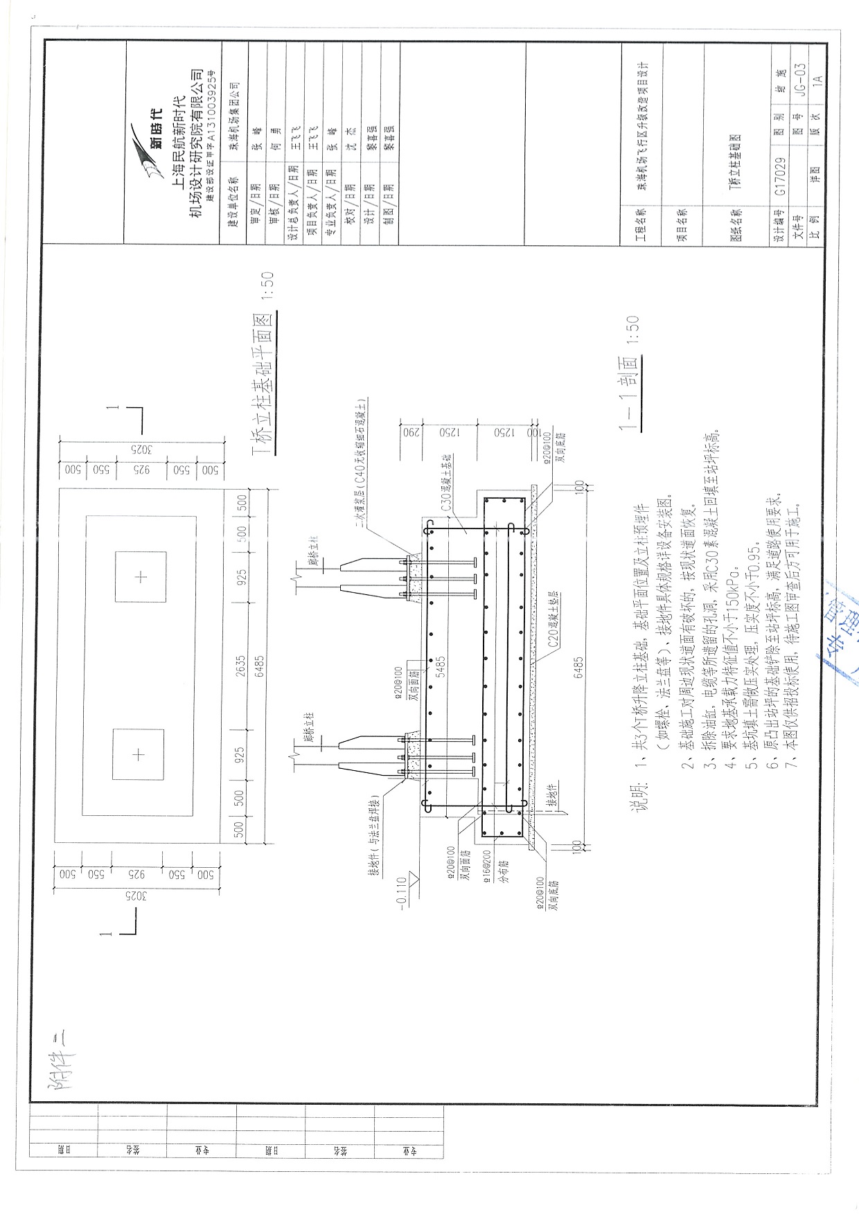
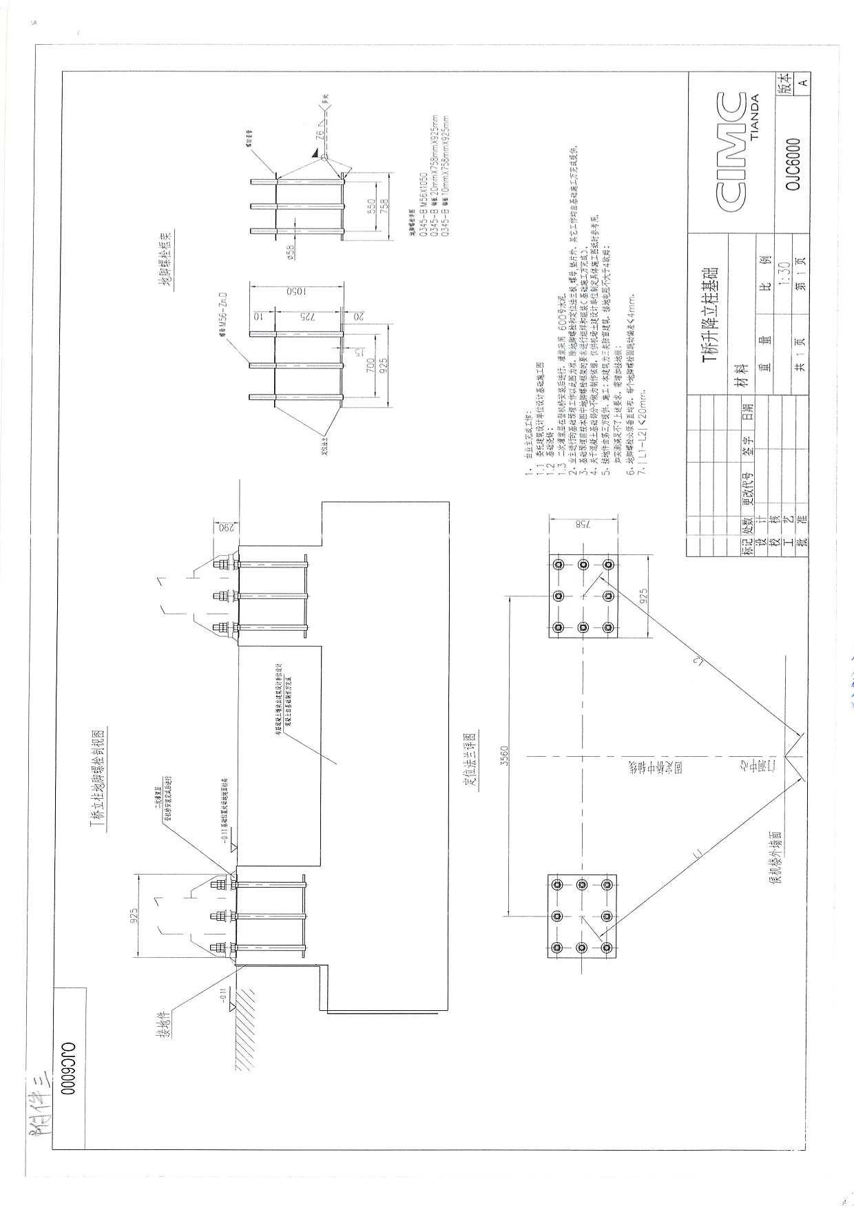
珠海机场T桥立柱基础工程项目询价公告